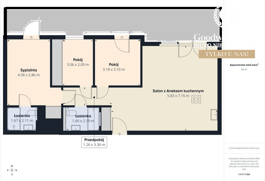
84 m2
4
z 5
2020
Mieszkanie na sprzedaż, czteropokojowe, Gdańsk Zaspa, ul. Grudziądzka.
W pełni wykończone, nowe i umeblowane mieszkanie.
Oferujemy na sprzedaż duży i bardzo słoneczny apartament zlokalizowany na osiedlu "Zajezdnia Wrzeszcz".
Ta nowa inwestycja. To doskonałe miejsce dla osób ceniących spokój, prestiż i komfort.
Nieruchomość wykończona w wysokim standardzie, z dbałością o każdy szczegół. Liczne zabudowy, realizowane pod nadzorem architekta.
Lokal składa się z:
- salonu połączonego z aneksem kuchennym z wyjściem na duży taras o pow. 18m2.
- 3 osobnych sypialni, w tym jedna z łazienką i garderobą.
- dodatkowej łazienki z wanną.
- przedpokoju.
Z mieszkania rozpościera się uroczy widok na sąsiednie zabudowy.
Standard wykończenia:
- wszystkie okna drewniane - balkonowe, dzięki którym jest możliwość wejścia na taras z każdego pokoju.
- drzwi wew. drewniane, robione na zamówienie, b. wysokie 2.50m.
- system SMART - to 24 godzinny system kontroli i bezpieczeństwa.
Zabudowy kuchni wraz z wysokiej jakości sprzętem AGD, całość zwieńczona pięknym kamiennym blatem, który tworzy idealne miejsce na rodziny stół.
Spójna zabudowa sypialni wraz z łóżkiem kontynentalnym, idealnie wkomponowana w całą stylistykę mieszkania.
Wysokość mieszkania - 2,9m2
Dodatkowo do mieszkania przynależy dwu stanowiskowe miejsce postojowe zlokalizowane w hali garażowej oraz komórka lokatorska - całość dodatkowo płatne 90.000zł.
W budynku znajduje się całodobowy monitoring i lobby z portierem oraz siłownia.
Nieruchomość doskonale zlokalizowana, w okolicy szereg punktów handlowo - usługowych, szkoły, przedszkola.
Dla wygody i komfortu mieszkańców, na terenie osiedla znajdować się będą liczne restauracje, sklepy, ścieżki rowerowe oraz plac zabaw.
Mieszkanie idealne dla osób ceniących komfort i wygodę.
Oferta idealna dla Twojej rodziny!
Zapraszam zainteresowanych.
Numer oferty: GW242108